• Costablanca Hogares
  • Avenida Pais Valenciano Nº 27, Local 4
  • 03580 Alfaz del Pi / l'Alfàs del Pi (Alicante)
  • 34670857746
  • 34687797792
  • Contacto
Búsqueda Avanzada
Casa / Chalet en El Albir / L'Albir, venta

Casa / Chalet en El Albir / L'Albir, venta

Nº de referencia: 25-1555C

Precio: 1.450.000€

  • Sup. Construida 339 m²
  • Sup. Parcela 480 m²
  • Habitaciones 3
  • Baños 3

EXCLUSIVA VILLA MODERNA EN ALBIR

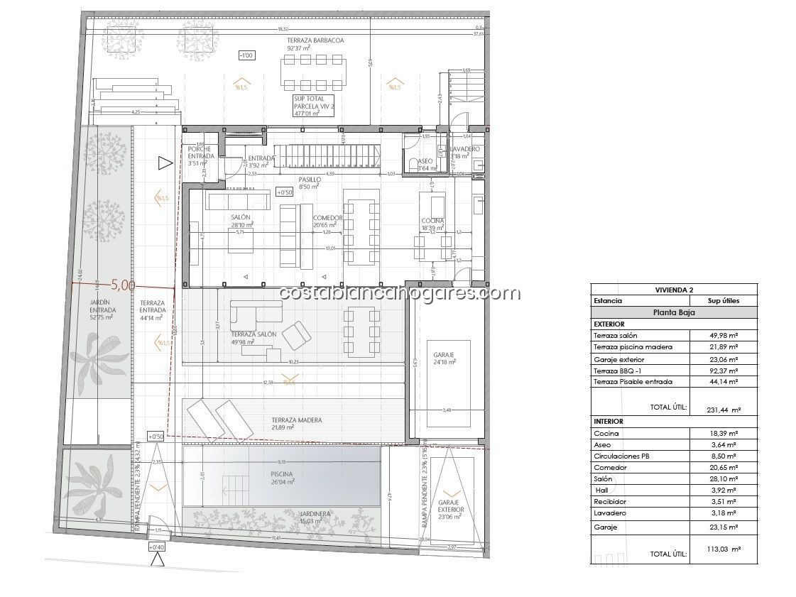
Esta exclusiva villa de diseño moderno en Playa de Albir, Alfàs del Pi, Costa Blanca, es una vivienda de nueva construcción que combina lujo, confort y una ubicación inmejorable, a sólo 15 minutos a pie de la playa. La propiedad tiene una superficie construida de 339 m² en una parcela de 480 m², con jardín mediterráneo y piscina privada. En planta baja, un espacio diáfano que combina salón, comedor y cocina con amplios ventanales y doble altura que llena de luz natural toda la vivienda, conectando los interiores con los exteriores a través de patios interiores, además de incluir un garaje con acceso directo a la vivienda. En la primera planta hay 3 dormitorios en suite con acceso a una terraza privada y un espectacular solárium con vistas al Puig Campana, la Sierra Bernia y la Sierra Helada. La planta semisótano ofrece 90 m² de espacio personalizable para gimnasio, sala de juegos o más dormitorios. Entre las características destacadas se encuentran suelo radiante, aire acondicionado por aerotermia, sistema domótico y alarma (cámaras), además de acabados de primera calidad. Esta villa ofrece un entorno privilegiado con diseño contemporáneo y todas las comodidades necesarias para el máximo confort.

Certificación energética: TA TA

Mapa

Detalle

  • Tipo de propiedad: Casa / Chalet
  • Tipo de operación: Venta
  • Provincia: Alicante
  • Población: El Albir / L'Albir
  • Habitaciones: 3
  • Baños: 3
  • Sup. Construida: 339 m²
  • Sup. Parcela: 480 m²
  • Tipo de obra: Obra Nueva
  • Certificación energética (consumo):
  • Certificación energética (emisiones):

Características

  • Interior:
  • Año Construcción: 2025
  • Cocina: Americana
  • Piscina: Privada
  • Jardín: Privado
  • Garaje:
  • Aire acondicionado:
  • Armarios empotrados:

EXCLUSIVA VILLA MODERNA EN ALBIR

Esta exclusiva villa de diseño moderno en Playa de Albir, Alfàs del Pi, Costa Blanca, es una vivienda de nueva construcción que combina lujo, confort y una ubicación inmejorable, a sólo 15 minutos a pie de la playa. La propiedad tiene una superficie construida de 339 m² en una parcela de 480 m², con jardín mediterráneo y piscina privada. En planta baja, un espacio diáfano que combina salón, comedor y cocina con amplios ventanales y doble altura que llena de luz natural toda la vivienda, conectando los interiores con los exteriores a través de patios interiores, además de incluir un garaje con acceso directo a la vivienda. En la primera planta hay 3 dormitorios en suite con acceso a una terraza privada y un espectacular solárium con vistas al Puig Campana, la Sierra Bernia y la Sierra Helada. La planta semisótano ofrece 90 m² de espacio personalizable para gimnasio, sala de juegos o más dormitorios. Entre las características destacadas se encuentran suelo radiante, aire acondicionado por aerotermia, sistema domótico y alarma (cámaras), además de acabados de primera calidad. Esta villa ofrece un entorno privilegiado con diseño contemporáneo y todas las comodidades necesarias para el máximo confort.

Más información

Si desea más información de este inmueble, complete los datos a continuación.

También puede llamarnos al:

34670857746

más

Certificación energética

Certificación energética: TA TA

Propiedades similares

Oportunidad
Venta 25-1608C

El Albir / L'Albir

Casa / Chalet en El Albir /...

Ubicada en una de las zonas más exclusivas de El Albir, a tan solo unos minutos de la playa, esta impresionante...

  • Habitaciones: 4
  • Baños: 3
  • Sup. Construida: 358 m²

1.439.000€

  • Costablanca Hogares
  • Avenida Pais Valenciano Nº 27, Local 4
  • 03580 Alfaz del Pi / l'Alfàs del Pi (Alicante)
  • 34670857746
  • 34687797792
  • más
Avenida Pais Valenciano Nº 27, Local 4
03580
Alfaz del Pi / l'Alfàs del Pi (Alicante)
  • Costablanca Hogares
  • Avenida Pais Valenciano Nº 27, Local 4
  • 03580 Alfaz del Pi / l'Alfàs del Pi (Alicante)
  • 34670857746
  • 34687797792

© Costablanca Hogares 2026

Avisos legales